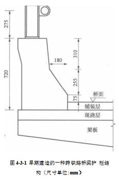
图4-3-1为早期建造的一种跨铁路桥梁护栏结构, 可见其与第3章中所述原有桥梁组合式护栏结构基本一致,高度同样在Im左右,上部是由H形立柱与圆管 横梁组成的钢结构,下部是完全相同的钢筋混凝土结 构,因此根据前面对原有桥梁组合式护栏安全性能分析结果(实车碰撞试验与计算机仿真分析),初步分析 该跨铁路桥梁护栏的防护性能同样存在不足,防护等级达不到SB级。考虑到跨铁路桥梁护栏安全性能指 标不仅包括防撞能力,还包括使车辆具有低侧倾功能指标,因此采用经碰撞试验验证的高精度计算机仿真模型对设置防落物网的原有跨铁路桥梁护栏安全性能进行系统分析。通过确定原护栏的防护能力为接下来进行跨铁路桥梁护栏改造奠定基础。

|